おかげさまで開設25周年RAJD.ELP.PL 創業祭

RAJD.ELP.PL

詳しくはこちら
マイストア マイストア 変更
  • 即日配送
  • 広告
  • 取置可能
  • 店頭受取

HOT ! 【M0111】オーダーメイドアクリル飼育ケース

※RAJD.ELP.PL 限定モデル
YouTuberの皆様に商品の使い心地などをご紹介いただいております!
紹介動画はこちら

ネット販売
価格(税込)

22215

  • コメリカード番号登録、コメリカードでお支払いで
    コメリポイント : 5ポイント獲得

コメリポイントについて

購入個数を減らす
購入個数を増やす

お店で受け取る お店で受け取る
(送料無料)

受け取り店舗:

お店を選ぶ

近くの店舗を確認する

納期目安:

13時までに注文→17時までにご用意

17時までに注文→翌朝までにご用意

受け取り方法・送料について

カートに入れる

配送する 配送する

納期目安:

2026.03.27 1:25頃のお届け予定です。

決済方法が、クレジット、代金引換の場合に限ります。その他の決済方法の場合はこちらをご確認ください。

※土・日・祝日の注文の場合や在庫状況によって、商品のお届けにお時間をいただく場合がございます。

即日出荷条件について

受け取り方法・送料について

カートに入れる

欲しいものリストに追加

欲しいものリストに追加されました

【M0111】オーダーメイドアクリル飼育ケースの詳細情報

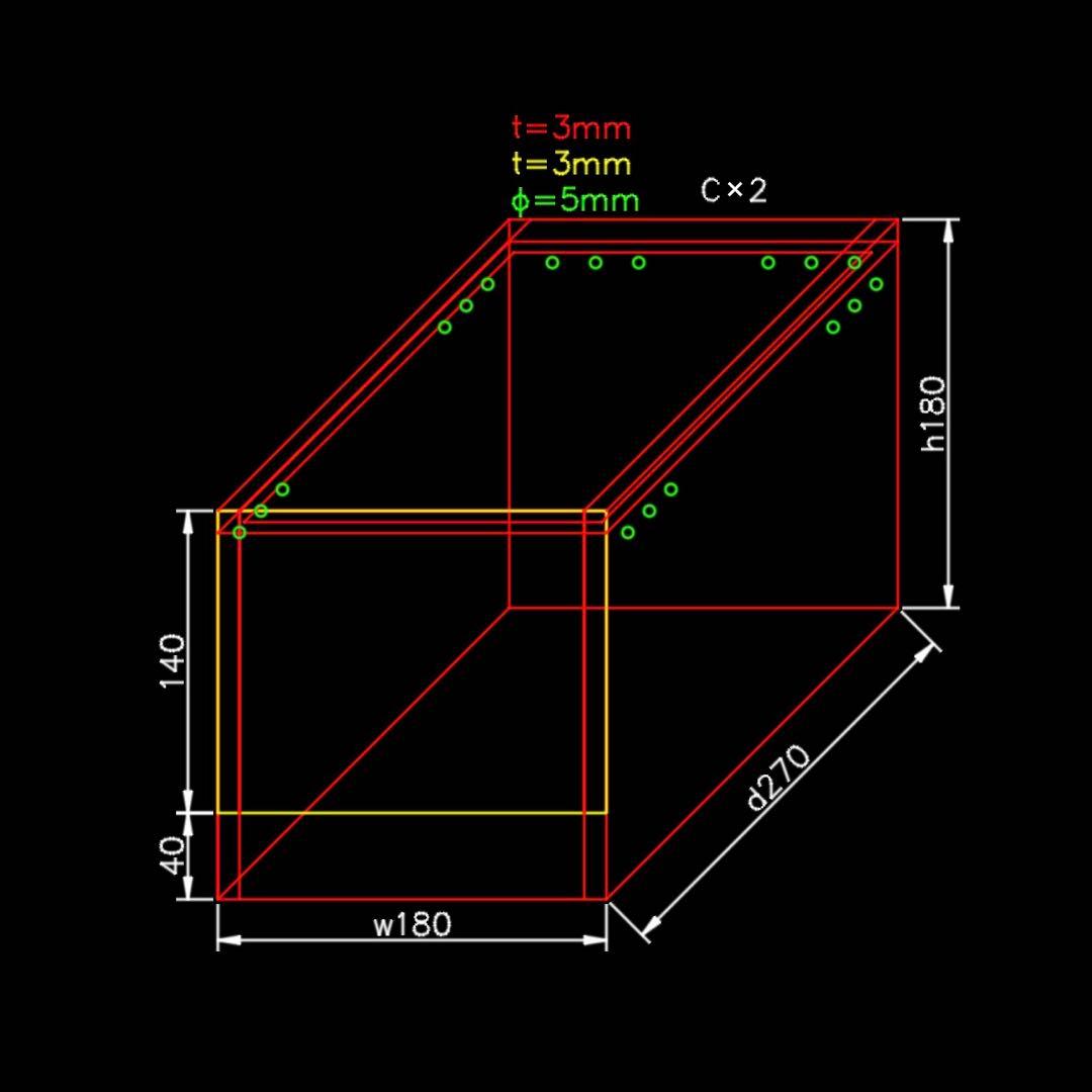
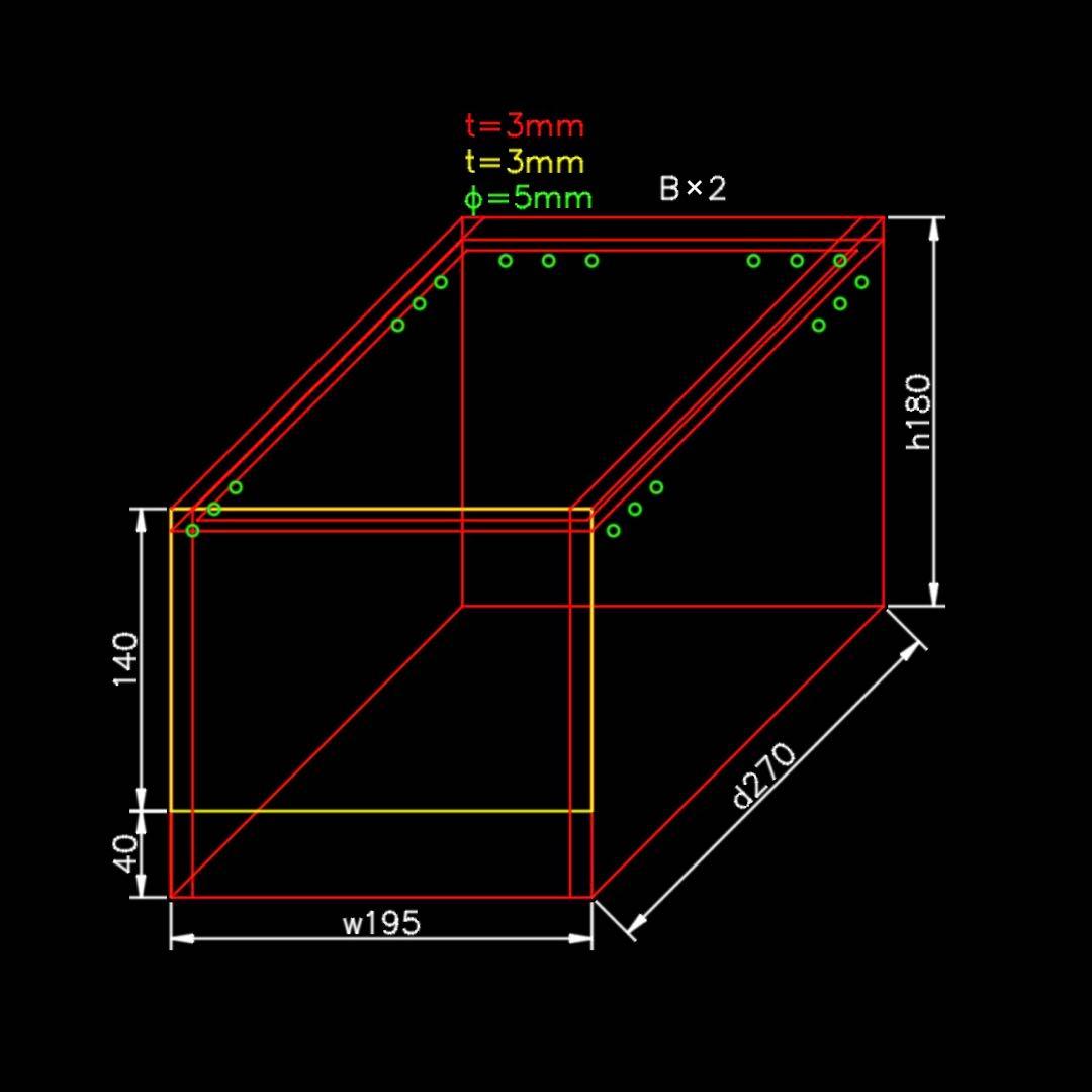
#桜雅アクリル板【yamamosio19996】様オーダーメイドアクリルケースご注文者様用出品ページです。☘️オーダー内容✅サイズ(A)全幅…210mm 奥行…270mm 全高…180mm数量:1台(B)全幅…195mm 奥行…270mm 全高…180mm数量:2台(C)全幅…180mm 奥行…270mm 全高…180mm数量:2台※以下共通✅合計:5台✅板厚:3mm✅仕上げ:バーナー✅加工:上スライド前扉(全面固定40mm) ・上蓋用スライドレール(蓋なし) ・空気穴φ5×18☘️商品価格✅本体価格 A…13,420円 B…13,060円×2 C…12,680円×2✅仕上げ、加工…0円✅部品…0円✅送料…1,450円✅価格計算:(13420+13060×2+12680×2)=64900+1450=66350✅割引:フォロワー様セール10%(6,490円) お得意様30%(19,470円) 端数切り捨て✅出品価格:40,390円よろしくお願い致します^ ^#アクリル板 #アクリル #飼育ケース #レプタイルボックス #ゲージ #ヘビ #ボールパイソン #トカゲ #ヤモリ #ヒョウモントカゲモドキ #レオパードゲッコー #レオパ #リクガメ #フトアゴヒゲトカゲ #カリフォルニアスネーク #ハムスター #モルモット #テラリウム #コケリウム #ビバリウム #オーダーメイド。②EXOTERRA 4545 ケージ グラステラリウム。⭐️下記内容と図面画像での寸法等のご確認をお願い致します。jmpt 1807050

同じカテゴリの 商品を探す

ベストセラーランキングです

このカテゴリをもっと見る

この商品を見た人はこんな商品も見ています

近くの売り場の商品

このカテゴリをもっと見る

カスタマーレビュー

オススメ度  4.5点

現在、3195件のレビューが投稿されています。